| PUR |
minerální vlna |
 | Ukončení u nároží

 |
 | Nároží na ocelové konstrukci 
 |
 |
Napojení vnitřní stěny

 |
 |
Napojení na sokl – I. varianta

 |
 |
Příčný spoj stěny

 |
 |
Napojení na sokl – II. varianta

 |
 |
Sokl

 |
 |
Příčný spoj - svisle kladené panely

 |
 |
Stěny - u okna - svislý řez

 |
 |
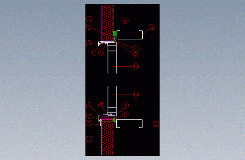
Svislý řez napojení kovového okna 
 |
 |
Stěny - u okna - vodorovný řez

 |
 |
Horizontální řez napojení kovového okna

 |
 |
Stěny - u štítu – I. varianta

 |
 |
Štítová stěna

 |
 |
Stěny - u štítu – II. varianta

 |
 |
Svislá spára - vodorovně kladené panely 
 |